Az emberek térigénye általában a fenti összegnél nagyobb szokott lenni. Mi magunk sem szívesen laknánk egy garzonban. Elnézve azonban a soron következő 6 belsőépítészeti műremeket, lehet, gondolkodás nélkül elcserélnénk a kicsit nagyobb, de kevésbé pofás és praktikus otthonunkat bármelyik szépségre. Bár a gyerekágyas megoldások azért meredeknek tűnnek… Ön melyikben lakásban tudná elképzelni a mindennapjait?
Yelena Potemkin, 29 nm
Catherine Remizov, 20 nm
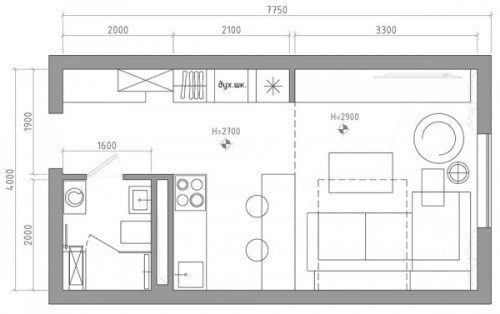
Stanislav Aynulov, 28 nm
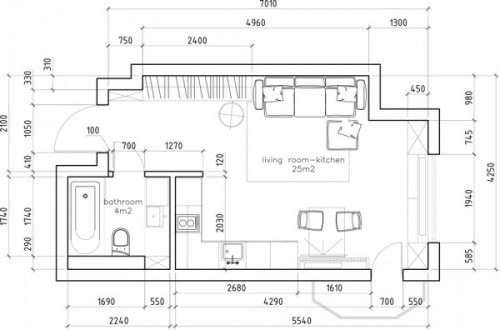
Eugene Han, 21 nm
Olga Chekmaryov, 30 nm
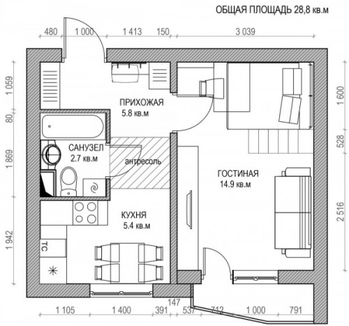
Yulia Baranova, 28,8 nm
Forrás: home-designing.com














































