Igazából a nyitókép fogott meg minket. Az ingatlan maga is jó befektetésnek és kellemes élettérnek tűnik, igaz, mi kicsit hozzányúlnánk. Jöjjön egy szuper helyen található, XII. kerületi ingatlan, nagyra – vagy legalábbis 74 nm-re – vágyóknak!
A Széll Kálmán tér tövében, kilátással a Városmajori templomra eladó egy négyszobás (2+2), valaha ügyvédi irodaként funkcionáló tágas, világos, II. emeleti lakás.
Az otthon egy 1890-es években épült nagypolgári, szépen felújított, 4 szintes, liftes épületben található, melyben összesen 22 lakás és/vagy iroda kapott helyet.
A lakás alapterülete 74 nm, belmagassága 4,2 méter.
A jelenlegi tulajdonos szinte minden lehetőségét kihasználta a rendelkezésre álló térnek. A nappaliból egy térfallal elválasztva hálószobát épített, az eredeti hatalmas méretű szobából két különálló lakóhelyiséget hozott létre. Innen nyílik a Csaba utcára néző erkély is, ahonnan nagyszerű a kilátás. A fűtést és a melegvíz ellátást cirko kazán biztosítja. A közös költség 16 ezer forint havonta, mely tartalmazza a korlátlan vízfogyasztást is.
Az ingatlan tehermentes.
A fák árnyékában egy termelői piac rejtőzködik…
Babaillat…! 
A leválasztásokat mi átgondolnánk. De nyilván létszám és igény függő, kinek mi az ideális.

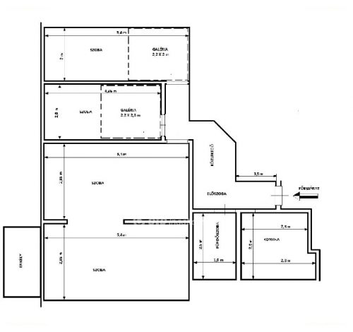
Egy igen fontos segédeszköz: az alaprajz!
Impozáns épület, kitűnő helyszín. Ráadásul van egy zseniális fagyizó is a közelben. Ja, meg a Széll Kálmán tér!
További képek az eladó lakásról az alábbi linkre kattintva érhetők el!
