Budapest 8. kerület Százados-negyedében frissen felújított trendi diákszálló eladó. Ez már önmagában egy érdekes felhívás. A hely berendezése és kinézete miatt azonban duplán izgalmas az eladásra szánt ingatlan. Nézelődjön egy diákszállóban és győződjön meg róla, hogy fest a nyers, mindössze lefestett tégla egy otthonban!
„A Hungária körút, a Puskás Ferenc Stadion, az Arena-Pláza, több szórakozóhely, étterem, söröző bank is 5-10 perc sétával elérhető.
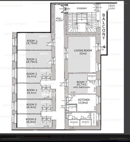
A 210 négyzetméteres plusz 100 négyzetméter állógalériás egy szinten kialakított 7 szobás napfényes szálló alkalmas lehet más elképzelések megvalósítására is, de mivel bútorokkal, és berendezési tárgyakkal illetve bérlőkkel együtt eladó, így felesleges más alternatívában gondolkodnia. Nem csak a felújítás minősége fogja önt meggyőzni, hanem a befektetett tőke megtérülése is, mivel legalább 8-9%-os hozamra számíthat. A jövedelmező üzleten kívül tulajdonosa lehet egy olyan ingatlannak, ami a rendszeres karbantartásokon kívül más befektetést nem igényel, de ha mégis eszébe jutnának kreatív gondolatok, az biztos, hogy tovább fogja fokozni a szálló népszerűségét. Sem a szerkezetre, sem a kialakításra, sem a korszerűsítésre, sem a berendezési tárgyakra nem kell többet költenie, csak megvásárolja, és működik magától.”

Az ingatlan adatai
- Ár: 94.900.000 Ft
- Lakás típusa: Téglalakás
- Alapterület: 210 nm
- Emelet: 1. emelet
- Szobák száma: 7
- Ingatlan állapota: Kiváló
- Fűtés típusa: Cirkó









