Tulajdonképpen csak egy találatunk volt, bár tény, hogy 2016-ban a műterem kifejezés már nem csak festéktől és terpentintől illatozó, hatalmas üvegtáblás helyeket jelenti. Tehát a romantikus, művészlakok utáni nyomozásunk során szembejövő „egyéb műtermek” nem tehetnek róla, hogy nem váltották be a hozzájuk fűzött reményeinket. Bezzeg ez a Dob utcai ingatlan!
„VII. Közkedvelt részén, Belső- Erzsébetvárosban,a Kazinczy utcai Ortodox Zsinagóga közelében, turisztikailag is kedvelt frekventált helyen, 1986-ban Tömb-rehabilitált szép épületben, második emeleti, tulajdoni lap szerint: 151 nm-es, de természetben 161nm-es, négy szobás, könnyedén több szobássá is alakítható, belső kettő szintes, kettő fürdőszobával rendelkező, tehermentes lakás eladó!
A lakás felső szintje jelenleg műteremként funkcionál, de sokrétű tevékenységre is alkalmas! Az ingatlan belső parkosított udvara szépen karbantartott-gondozott!”
Nos, a 97,5 millióért kínált, 4+1 félszobás ingatlan kapcsán igazat szólt a hirdető. Az alábbi képek legalább is ezt támasztják alá. Ennél klasszikusabb műtermet egyelőre nem találtunk. De nem adjuk fel!
A műterem rész belülről…
Az udvar külön megér egy misét. Bár a belváros rettentő zajos tud lenni, ez a kis oázis azért csak ér valamit!



Nos, ezeken az ablakokon árad be a fény…

A ház és a gang is meggyőző.

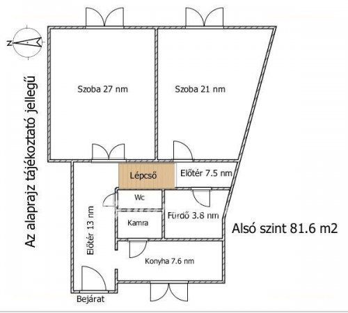
És az alaprajzok…

További képek és információk az ingatlanról itt és itt érhetőek el.


