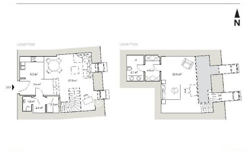
Bár pontos összeg sajnos nem derül ki, a kisebb alapterületű rezidencia ára alapján belőhető a négyzetméterár a belső kétszintes álomotthon kapcsán is. Van egy olyan érzésünk, ez az ingatlan nem magyar tulajdonosra vár. De lehet, tévedünk…
Leírás
A BELVÁROS SZÍVÉBEN, eladásra kínálunk rendkívül igényes ingatlanokat egy belvárosi 100 lakásos 2010-ben átadott Luxus PALOTÁBAN! A lakások méretében és árában igen eltérőek, a stúdió (42 nm) lakásoktól egészen a belső kétszintes LOFT (155 nm) lakásokig kedvünkre válogathatunk! Az első emeleten irodák, a földszinten exkluzív üzletek, az épület alatt pedig négyszintes teremgarázs található. További EXTRÁK ÉS szolgáltatások kényeztetik az itt lakók kényelmét, mint FITNESS terem, SZAUNA, 24 ÓRÁS PORTASZOLGÁLAT, MÉLYGARÁZS, MENNYEZETI HŰTÉS/FŰTÉS. Ha ÖNNEK FONTOS az igényes környezet és az egyedi DESIGN várom megtisztelő hívását!
A 81 nm-es, 2 szobás lakás ára az épületben a hirdetés alapján 171.402.000 Ft







